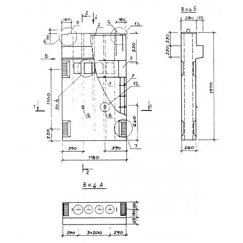
Вентблок-диафрагма 1ВД 36.30.26 предназначен для использования в железобетонных конструкциях. Он обеспечивает надежную защиту от влаги и пыли, а также обеспечивает хорошую звукоизоляцию. Этот элемент используется для создания вентиляционных отверстий в стенах зданий и сооружений, а также для обеспечения естественной вентиляции помещений. Вентблок-диафрагма 1ВД 36.30.26 имеет прочную конструкцию и долгий срок службы, что делает его незаменимым элементом в строительстве.









